

Wpisz swój adres email, a wyślemy Ci kod do zalogowania.
Jeśli nie masz jeszcze konta, zostanie utworzone automatycznie.
lub
Zgłoś nadużycie
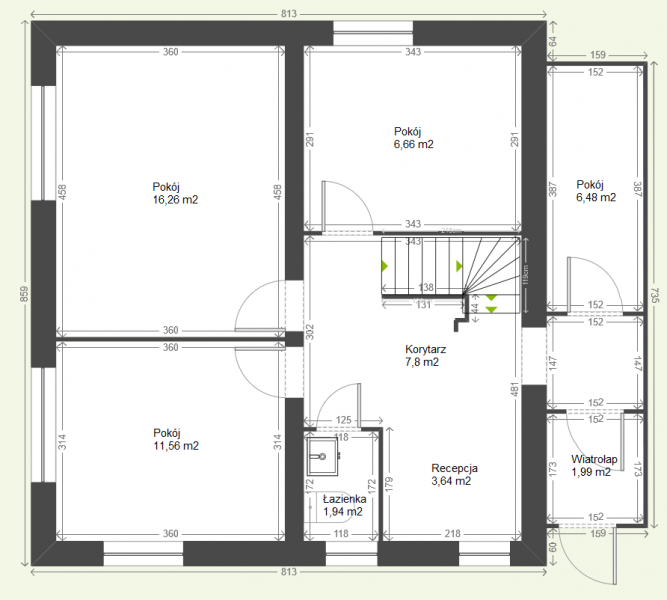
Do wynajęcia lokal użytkowy - całe piętro na wysokim parterze ok. 50m2
w budynku handlowo-usługowym w Rzeszowie ul. Lubelska 23A.
Opis lokalu:
- powierzchnia: ok. 50 m²
- pomieszczenia: 4 pokoje + łazienka + recepcja
- lokalizacja blisko centrum, bezpośrednio przy głównej ulicy wylotowej na Lublin
- parking dla klientów
- budynek i plac ogrodzony
- monitoring oraz system alarmowy
- budynek po generalnym remoncie
Lokal doskonale nadaje się na biura, gabinety lub inną działalność usługową.
gwarantując jednocześnie doskonałą widoczność i łatwy dojazd dla klientów.
Możliwość również wynajęcia powierzchni magazynowej.
Cena wynajmu 2950 zł
Opłaty eksploatacyjne 9 zł/m2
Media dodatkowo: prąd, ogrzewanie i woda.
Kontakt wyłącznie tel. pod nr. 6-0-4-2-1-7-3-3-3



